Если цена в объявлении изменится, мы сразу сообщим вам об этом на электронную почту.
Нажимая «Подписаться», вы соглашаетесь с правилами.
продам 3-к, Высокая, 114 350 000 ₽
23 мая 2025
Дата публикации объявления
Обн. вчера
Дата обновления объявления
Спецпредложение
Турбо x8
173 100 ₽/м²
Чистая продажа
Термин "Чистая продажа" означает, что в квартире никто не прописан или
есть куда выписаться и вывезти вещи. Это лучший вариант для покупателя.
Вероятность срыва сделки минимальна.
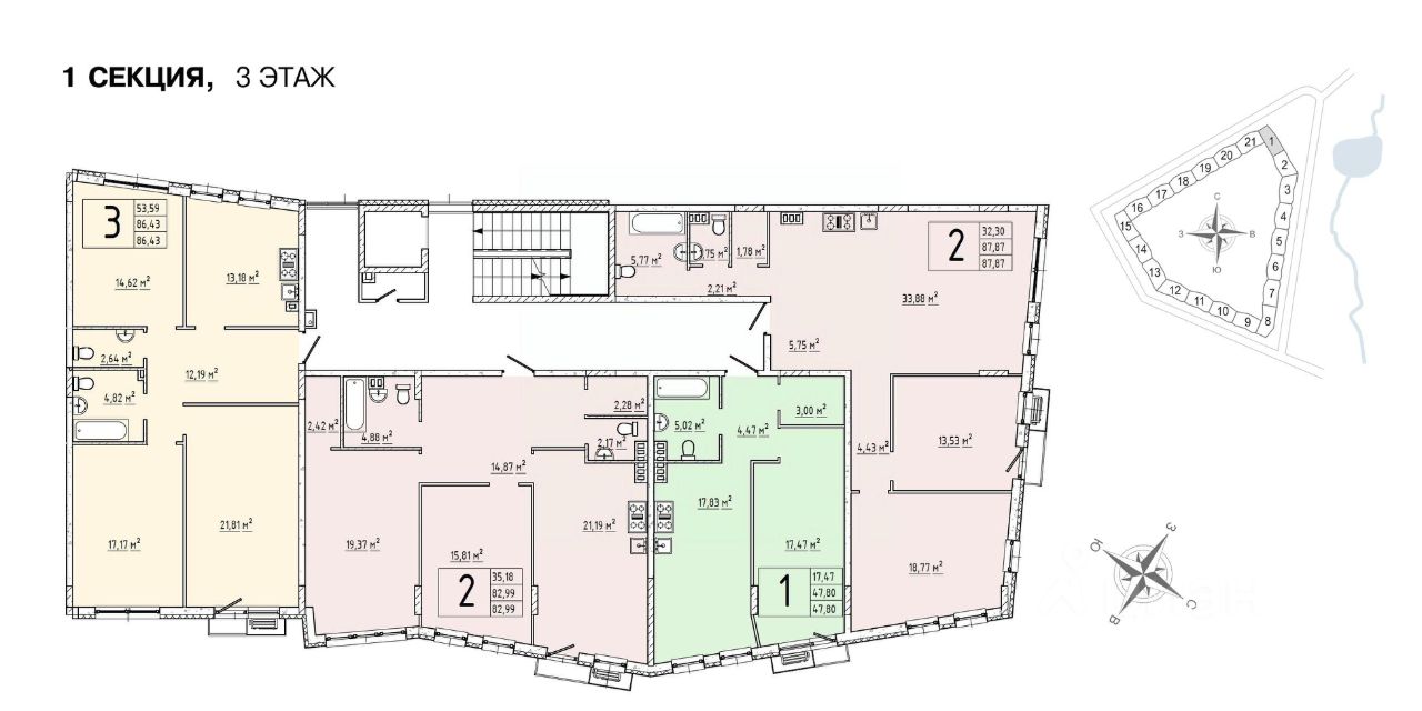
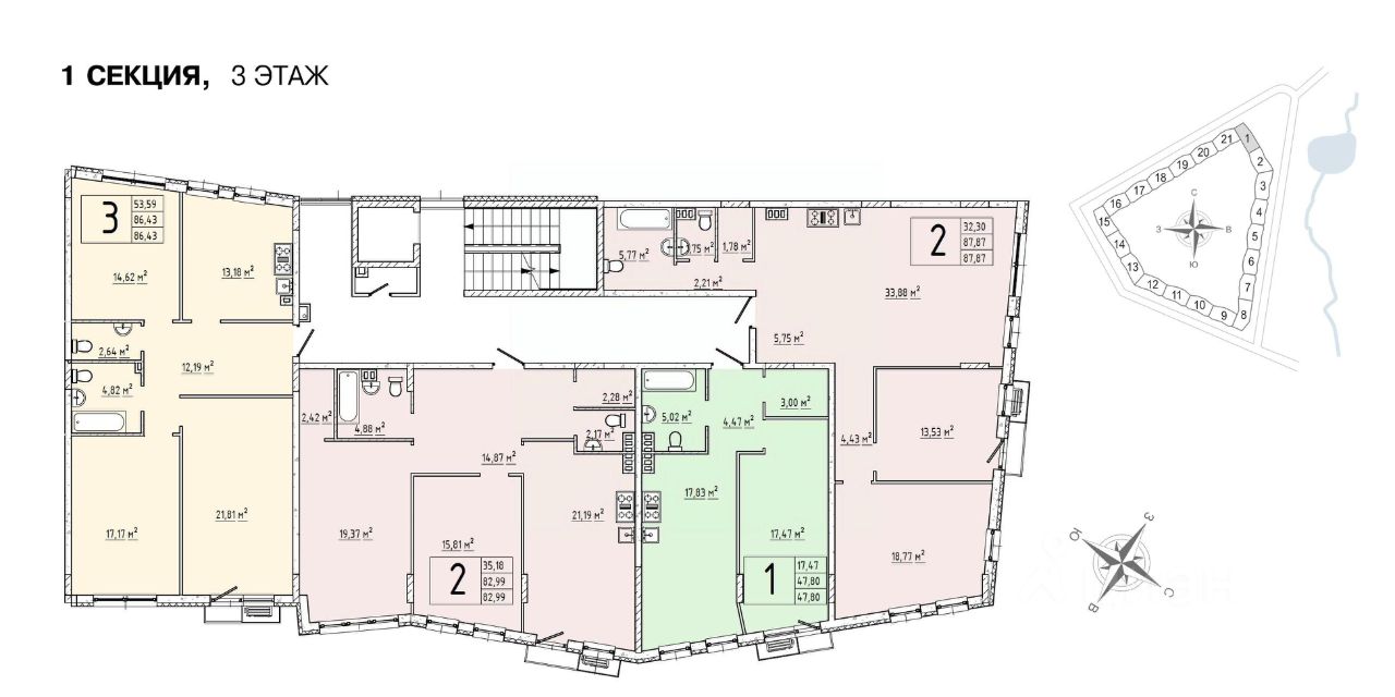
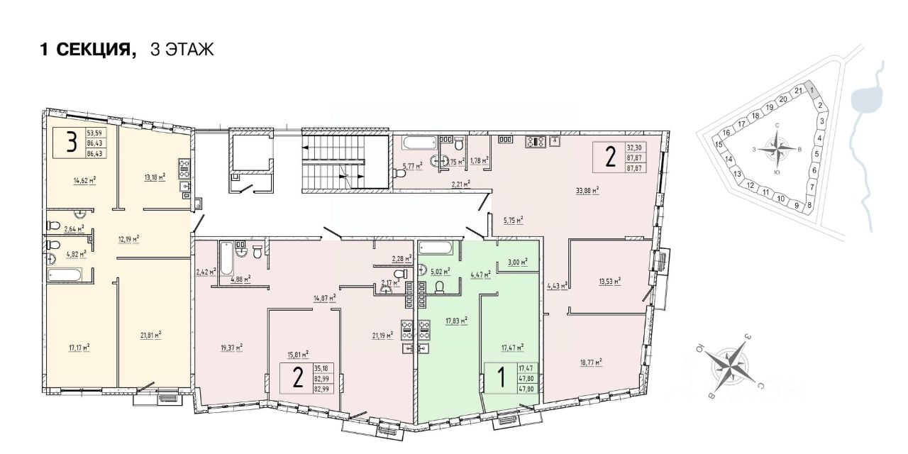
Квартира
Общая площадь82,9 м2
Жилая площадь35,2 м2
Кухня21,2 м2
Тип собственностисвидетельство о праве собственности
Прямая продажа от застройщика! Дом сдан, ключи в день покупки. Продаётся евро 3-комнатная квартира общей площадью 82,9 м² на 3-м этаже 4-этажного дома.
Квартира без отделки в сданном клубном доме ''Эльйон'' в Одинцовском районе. Свободная планировка, высота потолка 3,1 м. Доступен заказ отделки под ключ или white box.
Малоэтажный жилой комплекс ''Эльйон'' с высоким уровнем комфорта. 4-этажный дом с лифтами, просторными холлами, панорамным остеклением лестничного пространства, минимумом соседей в подъезде.
Благоустроенное пространство внутреннего двора. На территории проекта расположены зоны отдыха, оборудованные игровые и спортивные площадки. Безопасная закрытая территория внутреннего двора с видеонаблюдением.
Прямая продажа от застройщика! Дом сдан, ключи в день покупки. Продаётся евро 3-комнатная квартира общей площадью 82,9 м² на 3-м этаже 4-этажного дома.
Квартира без отделки в сданном клубном доме ''Эльйон'' в Одинцовском районе. Свободная планировка, высота потолка 3,1 м. Доступен заказ отделки под ключ или white box.
Малоэтажный жилой комплекс ''Эльйон'' с высоким уровнем комфорта. 4-этажный дом с лифтами, просторными холлами, панорамным остеклением лестничного пространства, минимумом соседей в подъезде.
Благоустроенное пространство внутреннего двора. На территории проекта расположены зоны отдыха, оборудованные игровые и спортивные площадки. Безопасная закрытая территория внутреннего двора с видеонаблюдением. Подземный и гостевой паркинг, индивидуальные кладовые.
4 км до Одинцово, рядом только малоэтажная застройка, зарыбленное озеро, река Ликова, обширная лесная территория и чистый воздух.
Вся необходимая инфраструктура рядом. В непосредственной близости гипермаркет ''Глобус'', ''Леруа Мерлен'', спортивный магазин, аптека и проч. Рядом расположена школа Багратион, лицей Монтессори, а также детский сад ''Азбушка'' на 1-м этаже дома.
Развитая транспортная инфраструктура: в пешей доступности находятся автобусная остановка и 2 ж/д станции ''Здравница'' и ''Перхушково'', до центра Одинцово 10 минут на транспорте, до ИЦ Сколково и Москва-Сити 25-27 минут по платной трассе М-1.
Прекрасная экология, природное окружение, развитая городская инфраструктура и близость к Москве важные составляющие для тех, кто выбирает загородную жизнь. Выбирайте ''Эльйон''.